06 October 2022

10,000 Square Foot Waterfront Historic Brick Mansion In Rye, NY (FLOOR PLANS)


YEAR BUILT: 1917
LOT SIZE: 2.82 acres
SQUARE FEET: 10,771
BEDROOMS: 8
BATHROOMS: 8 full, 2 half
LIST PRICE: $13,995,000
LISTING AGENT(S): Michael McCooey & Elizabeth "Liz" Higgins of Compass Greater NY

This stately brick Georgian Colonial in Rye, NY was built in 1917 and is situated on just under three acres of land with 470 feet of water frontage and 104 feet of private sandy beach. Perched atop a rolling green lawn, the historic residence boasts elegance and grandeur reminiscent of the Gatsby era with large sophisticated rooms and exquisite architectural details throughout.

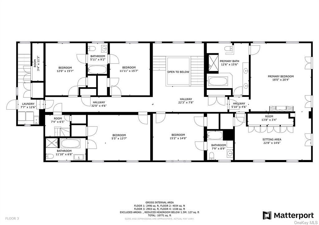
Spread over four levels, it features approximately 10,771 square feet of living space with eight bedrooms, eight full and two half bathrooms, foyer and separate stair hall with U-shaped staircase, formal living and dining rooms with fireplaces, a butler's pantry, an eat-in gourmet kitchen with walk-in dry pantry, a rear staircase, a sitting room, a home office with fireplace and custom built-ins, a sunroom with fireplace and wet bar, a third floor play room, lower level with recreation room, wine cellar, play room, and much more.

Outdoor features include a motor court, covered porch, breezeway, patios and terraces, swimming pool, greenhouse, and a deep water dock.

foyer

foyer

living room

dining room

butler's pantry

kitchen

kitchen

sitting room

office

sunroom

staircase

primary bedroom

primary bathroom

closet

playroom

rear elevation

rear elevation : pool

rear grounds

front aerial

front aerial

floor plan : lower level

floor plan : first floor

floor plan : second floor

floor plan : third floor

Click on an icon below to connect with The American Man$ion on social media