05 July 2025

10,000 Square Foot Modern Farmhouse In Amagansett, NY (FLOOR PLANS)


YEAR BUILT: 2023
LOT SIZE: 2.05 acres
SQUARE FEET: 10,143
BEDROOMS: 8
BATHROOMS: 8 full, 3 half
LIST PRICE: $11,495,000
LISTING AGENT(S): Dana Trotter of The Agency | Hamptons

Designed and built by a renowned developer, this remarkable new build in Amagansett, NY is handsomely clad in shingles and vertical cedar siding and is sited on just over two acres of land. The pristine residence is bathed in abundant natural light with expanses of floor-to-ceiling windows and its grand scale boasts intimate living spaces that create intuitive flow throughout.

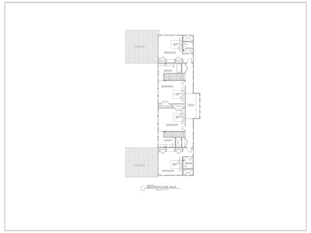
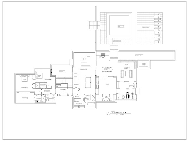
It features approximately 10,143 square feet of living space with eight bedrooms, eight full and three half bathrooms, foyer and separate stair hall with floating vertebrae staircase, formal dining room with vaulted ceiling, a catering kitchen with state-of-the-art appliances, an eat-in gourmet kitchen and formal living room under a cathedral ceiling, family room with fireplace and cathedral ceiling, mud and laundry rooms, an expansive walkout lower level with a wine display flanked by wine coolers, media and billiard rooms, a spa with steam and sauna, an exercise room, and much more.

Outdoor features include a gated entrance, motor and parking courts, covered porches, a breezeway, patios, open and rooftop decks, a BBQ kitchen, a shallow pool, a lap pool with spa, a detached guest house, and a detached two-car garage.

foyer  

dining room  

mudroom  

catering kitchen  

kitchen  

kitchen  

kitchen  

living room  

living room  

family room  

primary bedroom  

primary bathroom  

primary bathroom  

closet  

guest : living  

guest : bedroom  

guest : bathroom  

stair hall  

media room  

spa bath  

exercise room  

pool deck  

lap pool  

rear elevation  

shallow pool  

rear elevation  

backyard  

driveway  

gated entrance  

aerial view  

bird's eye view  

floor plan : lower level  

floor plan : first floor  

floor plan : second floor  

WE DO NOT OWN THE IMAGES ON THIS SITE. Please contact us for credit or removal. Contact: showcase@theamericanmansion.com