13 May 2025

25,000 Square Foot Waterfront Mega Mansion In Wainscott, NY (FLOOR PLANS)


YEAR BUILT: 2000
LOT SIZE: 25.00 acres
SQUARE FEET: 25,000
BEDROOMS: 8
BATHROOMS: 10 full, 4 half
LIST PRICE: $67,500,000
LISTING AGENT(S): Ed Petrie of Compass

Located at the end of a half-mile driveway on the peninsula of Georgica Pond with 25 private acres, "Burnt Point" is an iconic Hamptons waterfront estate that was custom designed by architect Francis Fleetwood and built in 2000. With over 2,000 feet of direct water frontage, the Wainscott, NY mega mansion boasts sweeping views of Georgica Pond and the Atlantic Ocean from virtually every room.

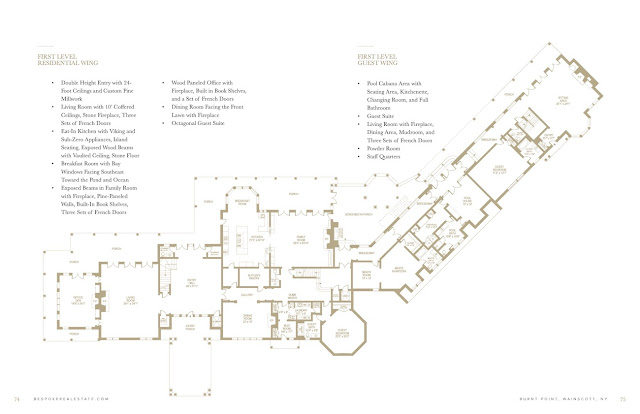
The steel frame-constructed shingle-style residence features approximately 25,000 square feet of living space with eight bedrooms, 10 full and four bathrooms, two-story foyer with L-shaped staircase, two elevators, formal living room with fireplace and coffered ceiling, a wood-paneled home office with fireplace, formal dining room with fireplace and high gloss ceiling, a butler's pantry, an eat-in gourmet kitchen with vaulted ceiling, a breakfast room, family room with fireplace and custom built-ins, a screened-in porch with fireplace, a pool house with kitchenette and full bathroom, a wood-paneled library with fireplace, a playroom, and an expansive lower level that includes an octagon-shaped wine cellar, recreation room, 15-seat stadium-style home theater, a home gym, workshop, and condenser and strong rooms. Through the three sets of double doors in the interior breezeway, there is a guest wing with a maid's quarters, a sitting room with fireplace and built-ins, and three guest bedrooms, each with full bathroom. Multiple garage structures can accommodate up to 10 vehicles.

Outdoor features include a gated entrance, motor court, a porte-cochere, covered porches, decks, terraces, a patios, a free form heated swimming pool with spa, a gazebo, professional greenhouse, sunken Har-Tru tennis court with viewing pavilion, and a private dock.

foyer  

living room  

living room  

home office  

dining room  

kitchen  

kitchen  

breakfast room  

family room  

screened-in porch  

pool house  

balcony  

primary bedroom  

covered deck  

primary bathroom  

primary bathroom  

library  

bedroom  

bedroom  

wine cellar  

home theater  

recreation room  

home gym  

swimming pool  

swimming pool  

rear elevation  

gazebo  

tennis court  

driveway  

garage  

detached garages  

rear aerial view  

front aerial view  

floor plan : lower level  

floor plan : first floor  

floor plan : second floor  

Click on an icon below to connect with The American Man$ion on social media.


WE DO NOT OWN THE IMAGES ON THIS SITE. Please contact us for credit or removal. Contact: showcase@theamericanmansion.com